Your region has been set automatically. Please confirm or select a different region.
RoughDeck® SLV Single Animal Livestock Scale
- Mild steel construction
- Diamond safety thread plate deck
- Rigid-type structural steel channel frame
- NEMA Type 4X stainless steel side-access junction box without quick connector
- Signal trim summing board
- Four adjustable stainless steel SUREFOOT™ support feet
- SURVIVOR® EL147HE hostile environment load cell cable
- Four alloy steel load cells
Approvals
Some approval documents are available to view by clicking the icons below.
WARNING: Cancer and Reproductive Harm California Proposition 65
Customizable Single Animal Scale
The RoughDeck SLV single animal livestock scale is a durable solution for weighing sheep, goats, cattle, hogs, horses and more. Depending on rancher needs, the SLV scale can be customized for retrofit or unique applications.
Stable and Efficient Livestock Scale
The diamond treadplate and rigid structural steel channel frame provide durability for weighing. The NEMA Type 4x stainless steel side-access junction box is well-protected and does not need a quick connector.
Equipped with four adjustable stainless steel SUREFOOT™ support feet and a SURVIVOR® EL147HE hostile environment load cell cable, this livestock scale can fit into any environment needed to weigh a variety of livestock. With four alloy steel load cells, the digital livestock scale provides quick and reliable measurements.
RoughDeck SLV Single Animal Livestock Scale Specifications
|
Full Scale Capacity: End Load Capacity: |
Cable Length: Warranty: |
Approvals: Capacity not to exceed 4,000 lb x 1 lb and platform size not to exceed 32 sq ft |
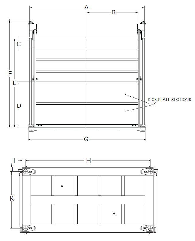
RoughDeck SLV Single Animal Livestock Scale Dimensions


|
Dimensions |
|||
|---|---|---|---|
| 3 × 8 ft | |||
| A | 93.75 in | I | 2.62 in |
| B | 41.19 in | J | 3.38 in |
| C | 5.01 in | K | 29.25 in |
| D | 37.12 in | L | 36.00 in |
| E | 72.06 in | M | 31.84 in |
| F | 74.00 in (swing gate) 86.59 in (slide gate) |
N | 3.50 in |
| G | 96.00 in | O | 77.50 in (swing gate) 90.09 in (slide gate) |
| H | 90.76 in | P | 70.75 in |
| 4 × 8 ft | |||
| A | 93.75 in | I | 2.63 in |
| B | 41.19 in | J | 3.38 in |
| C | 5.01 in | K | 41.25 in |
| D | 37.12 in | L | 48.00 in |
| E | 72.06 in | M | 43.85 in |
| F | 74.00 in (swing gate) 86.59 in (slide gate) |
N | 3.50 in |
| G | 96.00 in | O | 77.50 in (swing gate) 90.09 in (slide gate) |
| H | 90.76 in | P | 94.75 in |
Resources/Downloads
Articles
| Title | View | Category | Type | |
|---|---|---|---|---|
| Five Generations on Lone Pine Farm | View | Livestock Scales | Articles|Application Story | |
| Steering Profits | View | Livestock Scales|Agriculture | Application Story |
Sales Literature
| Title | Collateral Wizard | Request | Download | Category | |
|---|---|---|---|---|---|
| RoughDeck SLV Livestock Scale | Request | Download | Livestock Scales | ||
| Livestock Weighing Buyers Guide | Request | Download | Livestock Scales | ||
| Importance of Cattle Shrink | Download | Livestock Scales | |||
| Livestock Instrumentation Compatibility Matrix | Download | Livestock Scales | |||
| Livestock Scale Instrumentation | Request | Download | Livestock Scales |
Videos / Webinars
| Title | View | Download | Category | |
|---|---|---|---|---|
| Things to Consider When Purchasing a Livestock Scale | View | Download | Livestock Scales|Livestock Instrumentation|Agriculture | |
| What is "Shrink" When Weighing Livestock? | View | Download | Livestock Scales |
Things to Consider When Purchasing a Livestock Scale
What is "Shrink" When Weighing Livestock?
Parts
RoughDeck SLV (Scale Platform Only)
| Part # | Description | List Price | Cart/Quote |
|---|---|---|---|
| 103617 | Scale, Animal Roughdeck 3x8 SLV-4K 3ftx8ftx3-1/2 4,000lb 20ft w/o quick Connect NTEP Modified to Fit Gate and Rack. (Scale Platform Only) |
List Price: $3,700.00 |
|
| 78452 | Scale, Animal Roughdeck 3x8SLV-4K 3ftx8ftx3-1/2 4,000lb 20ft w/o Quick Connect NTEP (Scale Platform Only) |
List Price: $3,700.00 |
|
| 103619 | Scale, Animal Roughdeck 4x8 SLV-4K 4ftx8ftx3-1/2 4,000lb 20ft w/o Quick Connect NTEP Modified to Fit Gate and Rack. (Scale Platform Only) |
List Price: $3,800.00 |
|
| 78453 | Scale, Animal Roughdeck 4X8SLV-4K 4ftx8ftx3-1/2 4,000lb 20ft w/o Quick Connect NTEP (Scale Platform Only) |
List Price: $3,800.00 |
RoughDeck SLV 4,000 lb Bundle Package (Ships Assembled)
Options
| Part # | Description | List Price | Cart/Quote |
|---|---|---|---|
| 226036 | Indicator,380 Universal Segmented LCD Display, Battery Powered, Synergy Series With 4 Pin Quick Connect Ag Scale Cable . |
List Price: $785.00 |
|
| 18777 | Mounting Plate Set, Roughdeck 1,000-10,000 lb Steel Painted |
List Price: $40.00 |
|
| 18778 | Mounting Plate Set, Roughdeck 1,000-10,000 lb SST |
List Price: $55.00 |
|
| Consult | Smooth deck instead of diamond safety tread plate |
Consult |