Your region has been set automatically. Please confirm or select a different region.
VPG Celtron MDB Alloy Steel, Double-Ended Beam Load Cell
The Celtron MDB is a unique, compact style of load cell and mount assembly that is popular in many parts of the world for use in truck scales. The load cell is a double-ended shear beam for long life and includes ball and cups. Capacities range from 10 to 50 t.
All capacities include cup and ball.
Approvals
Some approval documents are available to view by clicking the icons below.
WARNING: Cancer and Reproductive Harm California Proposition 65
MDB Load Cell Specifications
|
Full Scale Output: Output Resistance: Input Resistance: Material/Finish: Temperature: |
Seal Type: Safe Overload: Rated Excitation: Nonlinearity: Hysteresis: Insulation Resistance: |
Cable Length: Cable Color Code: Warranty: Approvals: |
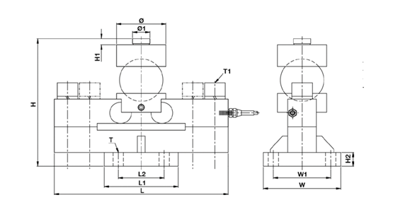
MDB Load Cell Dimensions

| Rated Capacity | L | L1 | L2 | H | H1 | H2 | Ø | Ø1 | W | W1 | T1 |
|---|---|---|---|---|---|---|---|---|---|---|---|
| t/mm | |||||||||||
| 10 to 30 | 240.00 | 125.00 | 80.00 | 230.00 | 11.00 | 20.00 | 88.00 | 30.00 | 135.00 | 100.00 | 2-M24 |
| 40 to 50 | 340.00 | 160.00 | 124.00 | 261.00 | 11.00 | 20.00 | 98.00 | 40.00 | 160.00 | 124.00 | 2-M24 |
Resources/Downloads
Parts
| Part # | Description | List Price | Cart/Quote |
|---|---|---|---|
| 169243 | Load Cell,DEB MDB-30t 30t 13.5m Alloy Steel 2mv/v 700/770 Ohm FM IP67 Celtron |
List Price: $583.00 |