Your region has been set automatically. Please confirm or select a different region.
MVS Mount/MVS Weigh Module Conversion Kit
Complete Kit Includes
- Four to ten MVS mild steel mounts with RL75058-LP 75,000 lb NTEP Certified alloy steel environmentally sealed double-ended beam load cells
- One JB8SPT NEMA 4 Type signal trim junction box (JB1010 on 10 module kit)
- 100 ft of hostile environment EL147HE SURVIVOR® load cell cable
Standard Features
- Capacity (per module): 10,000 to 125,000 lb
- Mild steel construction
- Specially hardened center link
- Self-checking design
- Self-centering design
- Accommodates thermal expansion and contraction
- Compatible with VPG® Sensortronics® 65058 or VPG® Celtron® CLB
Applications
- Truck scale conversion
- Heavy-capacity horizontal tanks
Approvals
Some approval documents are available to view by clicking the icons below.
WARNING: Cancer and Reproductive Harm California Proposition 65
Truck Scale Conversion Weigh Module
The MVS utilizes the center-loaded double-ended shear beam load cell design. The mount is self-centering, which eliminates the need of costly check rods. This results in a pendulum suspension effect that eliminates binding, protects the load cells from damaging side load common on truck scales and automatically returns the mount to dead center. The mount is easy to install and promises high performance and long life.
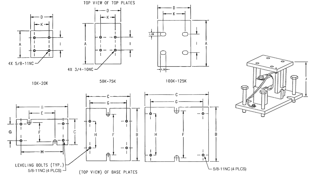
MVS Mount/MVS Dimensions

| Rated Capacity | A | B | C | D | E | F | G | H | I | J | K |
|---|---|---|---|---|---|---|---|---|---|---|---|
| lb/in | |||||||||||
| 10,000 to 25,000 | 7.25 | 14.00 | 7.00 | 6.00 | 7.00 | 5.25 | 4.50 | 11.50 | 3.50 | 8.50 | 4.00 |
| 50,000 to 75,000 | 11.00 | 14.25 | 12.00 | 7.00 | - | 11.00 | 10.00 | 7.25 | 3.50 | 11.53 | 4.00 |
| 100,000 to 125,000 | 12.50 | 14.75 | 17.25 | 9.00 | - | 12.75 | 14.25 | 11.25 | 5.00 | 14.21 | 6.00 |
Resources/Downloads
Parts
MVS Mount (Does NOT Include Load Cell)
| Part # | Description | List Price | Cart/Quote |
|---|---|---|---|
|
71200
|
Mount, MVS 10k-25k Painted, Mild Steel
|
List Price: $725.00 |
|
|
46441
|
Mount, MVS 50k-75k Painted, Mild Steel
|
List Price: $865.00 |
|
|
68520
|
Mount,MVS 100k-125k Painted, Mild Steel
|
List Price: $1,475.00 |
MVS Conversion Kits (Includes 75,000 lb Load Cells, Mounts and Junction Box)
Options
Dummy Load Cell
| Part # | Description | List Price | Cart/Quote |
|---|---|---|---|
| 169388 | Dummy Load Cell, RL75058 50-75k dummy load cell mild steel |
List Price: $175.00 |
|
| 159696 | Dummy Load Cell RL75058 100-125k dummy load cell for RL75058-100-125k mild steel |
List Price: $212.00 |
Replacement Parts
Replacement parts can only be purchased through trained and authorized dealers. You must be logged in as a dealer to view any available replacement parts.
To locate a dealer in your area, please call us at 1-800-472-6703 or fill out a request online.
Related Products

Rice Lake RL75058I Alloy Steel, Double-Ended Beam Load Cell
The Rice Lake RL75058I double-ended beam, alloy steel load cell is nickel plated and environmentally sealed with stainless steel side plates.

Rice Lake RL75060S Stainless Steel, Double-ended Beam Load Cell
With welded-seal and NTEP Certification to 10,000 divisions, the Rice Lake RL75060S load cell provides the ultimate in durability and accuracy in high-capacity process measurement and control.

VPG® Sensortronics® 65058S Stainless Steel, Double-ended Beam Load Cell
The VPG Sensortronics 65058S is a stainless steel, double-ended beam load cell specifically designed for harsh environment vehicle weighing applications.

VPG® Celtron® CLB Alloy Steel, Double-ended Beam Load Cell
The VPG Celtron CLB is an alloy steel, nickel-plated, double-ended beam load cell that is ideal for applications in truck, track, tank and hopper applications.